Từ 7h30 đến 17h00

Từ thứ 2 đến thứ 7

Lô TM09, Đường Đặng Quang Cầm, Khu đô thị biển Bình Sơn - Ninh Chữ (Khu K2), phường Đông Hải, tỉnh Khánh Hòa.

0901992103

nguyenduc.dxnt@gmail.com

So sánh các bảng liệt kê

VCN Vĩnh Hải – Nhà ở xã hội Vĩnh Hải

Nhà ở xã hội VCN Vĩnh Hải

Với bối cảnh thiếu hụt nhà ở nghiêm trọng và nhu cầu thực tế rõ ràng, việc triển khai dự án nhà ở xã hội Vĩnh Hải, phường Bắc Nha Trang không chỉ cần thiết mà còn mang tính chiến lược lâu dài. Dự án này sẽ góp phần xây dựng một đô thị phát triển toàn diện, bền vững và nhân văn – nơi mọi người dân đều có cơ hội “an cư lạc nghiệp”.

Nhà ở xã hội Vĩnh Hải - VCN Vĩnh Hải

Vị trí dự án VCN Vĩnh Hải

Vị Trí: Đường Đào Văn Tiến, Phường Bắc Nha Trang, Tỉnh Khánh Hoà.

Quy mô diện tích là 16.227,8 m2 và có phạm vi ranh giới như sau:

+ Phía Bắc: Giáp dân cư hiện hữu;

+ Phía Nam: Giáp dân cư hiện hữu và Bệnh viện phổi tỉnh Khánh Hoà;

+ Phía Đông: Giáp đường Đào Văn Tiến;

+ Phía Tây: Giáp dân cư hiện hữu;

VCN Vĩnh Hải

Cơ cấu sử dụng đất VCN Vĩnh Hải

Tổng diện tích khu đất quy hoạch là 16.227,8 m2 bao gồm các loại đất như sau:

+ Đất nhà ở liên kế (ký hiệu LK): Tổng diện tích là 1.538,0m2, chiếm tỷ lệ 9,5% tổng diện tích lập quy hoạch, gồm 01 ô đất liên kế (ký hiệu LK). Tổng số lô liên kế 18 lô. Tầng cao tối đa 04 tầng. MĐXD tối đa 100,0%, HSSDĐ tối đa 4,0 lần.

+ Đất nhà chung cư ( ký hiệu CC): Tổng diện tích là 9.750,5 m2, chiếm tỷ lệ 60,1% tổng diện tích lập quy hoạch, tổng số căn hộ dự kiến khoảng 836 căn, gồm 2 phần đế và tháp.

Tầng đế cao 02 tầng, MĐXD tối đa 65,4 %, HSSDĐ tối đa 1,3 lần.

Tầng tháp cao 18 tầng, MĐXD tối đa 41,2 %, HSSDĐ tối đa 7,4 lần.

+ Đất cây xanh sử dụng công cộng (cấp đơn vị ở – ký hiệu CV): Tổng diện tích là 2.941,6 m2, chiếm tỷ lệ 18,1 % tổng diện tích lập quy hoạch, gồm 01 ô đất. Tầng cao tối đa 01 tầng. MĐXD tối đa 5%, HSSDĐ tối đa 0,05 lần.

+ Đất giao thông: Tổng diện tích 1.997,7 m2 chiếm tỷ lệ 12,3 % tổng diện tích lập quy hoạch.

VCN Vĩnh Hải

Quy hoạch giao thông

Giao thông đối ngoại:

+ Đường D3 (Đào Văn Tiến) Mở rộng vỉa hè bên phải thêm 2,0m từ phạm vi ranh dự án đến N3 Mặt cắt 1-1: Lộ giới của tuyến: 18m

+ Mặt đường: Bmđ = 2×5,0= 10,00m.

+ Hè đường: Bhđ = 1×3,0+1×5,0 = 8,00m.

Mặt cắt 2-2: Lộ giới của tuyến: 16m theo lộ giới quy hoạch phân khu

+ Mặt đường: Bmđ = 2×5,0= 10,00m.

+ Hè đường: Bhđ = 2×3,0 = 6,00m.

Đường Đào Văn Tiến hiện trạng có bề rộng từ 13-16,0m, đường BTXM . Mặc dù tuyến nằm ngoài ranh dự án, tuy nhiên CĐT sẽ liên hệ cơ quan địa phương xin phép cải tạo (Hồ sơ cải tạo tuyến đường riêng) BTXM hiện trạng từ mép đường trái đường Nguyễn Khuyến Km 0+005,00 đến Km 0+235,40m đường Đào Văn Tiến. Tuân thủ lộ giới theo Quy hoạch phân khu được duyệt.

+ Đường D2A

Mặt cắt 3-3: Lộ giới của tuyến: 14m

+ Mặt đường: Bmđ = 2×4,0= 8,00m.

+ Hè đường: Bhđ = 2×3,0 = 6,00m

Giao thông đối nội:

Giao thông khu vực và nội bộ: Các tuyến đường trong khu được thiết kế tuân theo TCVN 13592:2022. Xây dựng hệ thống đường khu vực vuông góc và song song hệ thống đường chính khu vực tạo thành mạng lưới giao thông hoàn chỉnh. Bảng tổng hợp tiêu chuẩn kỹ thuật chủ yếu của các tuyến đường cụ thể:

+ Đường N2

Mặt cắt 3-3: Lộ giới của tuyến: 14m

+ Mặt đường: Bmđ = 2×4,0= 8,00m.

+ Hè đường: Bhđ = 2×3,0 = 6,00m.

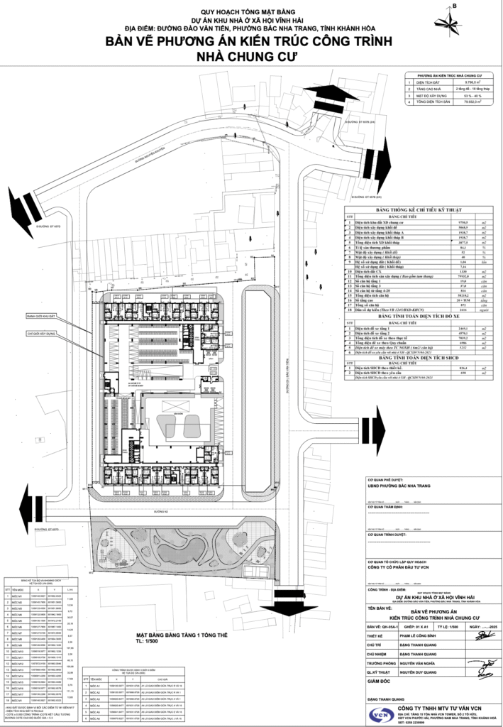
Mặt bằng tầng Nhà ở xã hội Vĩnh Hải – VCN Vĩnh Hải

VCN Vĩnh Hải

Phối cảnh Nhà ở xã hội Vĩnh Hải – VCN Vĩnh Hải